System przesuwny
Deceuninck HST
Deceuninck HST
System jest kompatybilny z innymi rozwiązaniami okiennymi Deceuninck i zapewnia doskonałą ochronę przed warunkami atmosferycznymi, jak również wyjątkową łatwość użytkowania.
Jego niezaprzeczalną cechą jest możliwość stosowania pakietów szybowych o grubości aż do 52 mm przy głębokości skrzydła 76 mm.
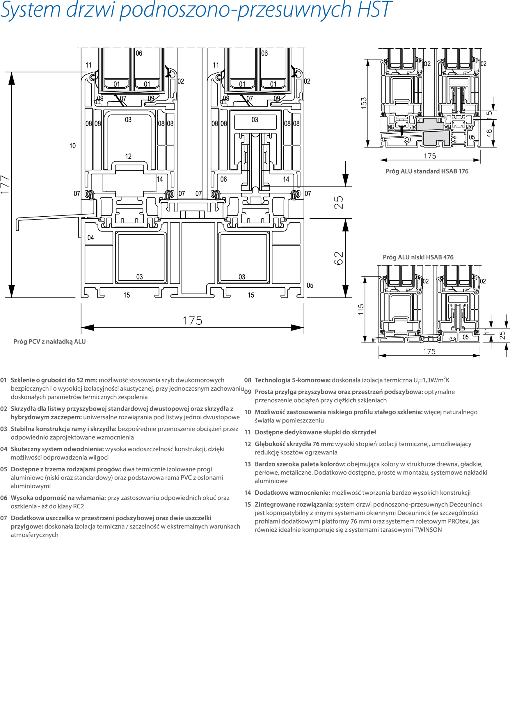
Szklenie o grubości do 52 mm: możliwość stosowania szyb dwukomorowych bezpiecznych i o wysokiej izolacyjności akustycznej, przy jednoczesnym zachowaniu doskonałych parametrów termicznych zespolenia.
System przesuwny HST to rozwiązanie bezpieczne i posiadające dobre właściwości izolacyjne
- Skrzydła dla listwy przyszybowej standardowej dwustopowej oraz skrzydła z hybrydowym zaczepem: uniwersalne rozwiązania pod listwy jedno i dwustopowe
- Stabilna konstrukcja ramy i skrzydła: bezpośrednie przenoszenie obciążeń przez odpowiednio zaprojektowane wzmocnienia
- Skuteczny system odwodnienia: wysoka wodoszczelność konstrukcji, dzięki możliwości odprowadzenia wilgoci
- Dostępne z trzema rodzajami progów: dwa termicznie izolowane progi aluminiowe (niski oraz standardowy) oraz podstawowa rama PVC z osłonami aluminiowymi
- Wysoka odporność na włamania: przy zastosowaniu odpowiednich okuć oraz oszklenia - aż do klasy RC2
- Dodatkowa uszczelka w przestrzeni podszybowej oraz dwie uszczelki przylgowe: doskonała izolacja termiczna / szczelność w ekstremalnych warunkach atmosferycznych
- Technologia 5-komorowa: doskonała izolacja termiczna Uf =1,3W/m²K08 Technologia 5-komorowa: doskonała izolacja termiczna Uf =1,3W/m²K
- Prosta przylga przyszybowa oraz przestrzeń podszybowa: optymalne przenoszenie obciążeń przy ciężkich szkleniach
- Możliwość zastosowania niskiego profilu stałego szklenia: więcej naturalnego światła w pomieszczeniu
- Dostępne dedykowane słupki do skrzydeł
- Głębokość skrzydła 76 mm: wysoki stopień izolacji termicznej, umożliwiający redukcję kosztów ogrzewania
- Bardzo szeroka paleta kolorów: obejmująca kolory w strukturze drewna, gładkie, perłowe, metaliczne. Dodatkowo dostępne, proste w montażu, systemowe nakładki aluminiowe
- Dodatkowe wzmocnienie: możliwość tworzenia bardzo wysokich konstrukcji
- Zintegrowane rozwiązania: system drzwi podnoszono-przesuwnych Deceuninck jest kopmpatybilny z innymi systemami okiennymi Deceuninck
Niski próg HST
PARAMETRY TECHNICZNE
STANDARDY, PROFILE, KOLORYSTYKA, STATYKA
W poniższym katalogu znajdziecie Państwo szczegółowe dane techniczne dotyczące zastosowanych standardów, rozwiązań technicznych, profili, kolorystyki oraz statyki.
Profile
Deceuninck
Duże przeszklone tafle, masywne skrzydła od podłogi do sufitu zawieszone na małych, filigranowych zawiasach są dziś bardzo modne. Dzięki okuciom Roto NX okna osiągają 2,8 metra wysokości i 150 kg wagi.
Po co takie duże i ciężkie?
Żeby utrzymać szybę antywyważeniową lub ciepłochronną o bardzo dużej powierzchni.
Taki zestaw zapewni dużo światła w domu, ciepło i ciszę oraz ochroni przed wizytą nieproszonych gości. To wszystko w nowoczesnym, niebanalnym designie – oryginalne okna z pięknymi zawiasami bez widocznych wkrętów, z estetyczną klamką dopasowaną kolorystycznie do osłonek.
Z Roto NX okno jest bezpieczne dla użytkowników i trudne do sforsowania dla włamywaczy.
Wygodne otwieranie, wietrzenie i blokowanie okien po wyjściu na balkon. Powłoka okuć Roto NX chroni przed korozją nawet w trudnych warunkach klimatycznych.
Deceuninck
Przesuwne okna i drzwi tarasowe wpuszczają światło do wnętrza tworząc idealne połączenie przestrzeni mieszkalnej i dworu.
Drzwi przesuwne otwierają się bardziej komfortowo i zajmują mniej miejsca niż tradycyjne drzwi balkonowe otwierane do wewnątrz.
Systemy równolegle i uchylno-przesuwne są dostępne do okien PVC. Wszystkie elementy są projektowane i produkowane przez Roto.
Dzięki temu możemy zapewnić wysoką, typową dla Roto jakość komponentów.
Uniwersalne zastosowanie Dzięki modułowej konstrukcji Roto Patio Alversa spełnia indywidualne oczekiwania klientów. Jeden system umożliwia cztery różne rozwiązania.
Roto Patio Alversa można bowiem zaprojektować jako system równolegle lub uchylno-przesuwny. W zależności od wariantu – do wyboru z mikrowenylacją lub wentylacją w pozycji uchylnej.
SYSTEM PRZESUWNY HST
Szyby są istotnym chociaż niedocenianym elementem wyposażenie drzwi i okien.
Na co zwrócić uwagę dobierając szyby ?
Warto przede wszystkim zwrócić uwagę na szyby o wysokim współczynniku przepuszczalności energii słonecznej g. Jeśli parametr g jest wysoki, tym więcej promieniowania dociera do wnętrza pomieszczeń. Oferujemy:
- pakiety szybowe
- szyby bezpieczne
- szyby przeciwsłoneczne
- szyby dzwiękochłonne
KOLORYSTYKA
Szeroka gama kolorów
oraz wzorów
Paleta kolorystyczna dedykowana profilom Deceuninck oferuje szeroką gamę kolorów i wzorów. Można w niej znaleźć okleiny z fakturą i w kolorach naturalnego drewna, folie o perłowym lub aluminiowym wzorze. Możliwy jest także wybór profili kolorowych zgodnie z upodobaniami Klientów.



